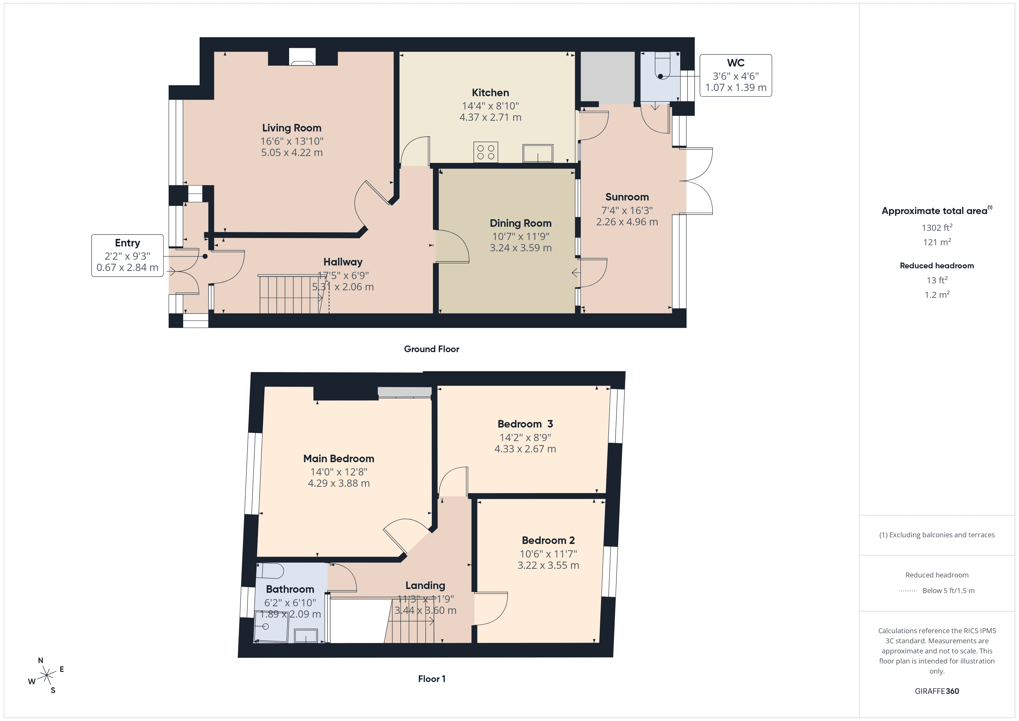
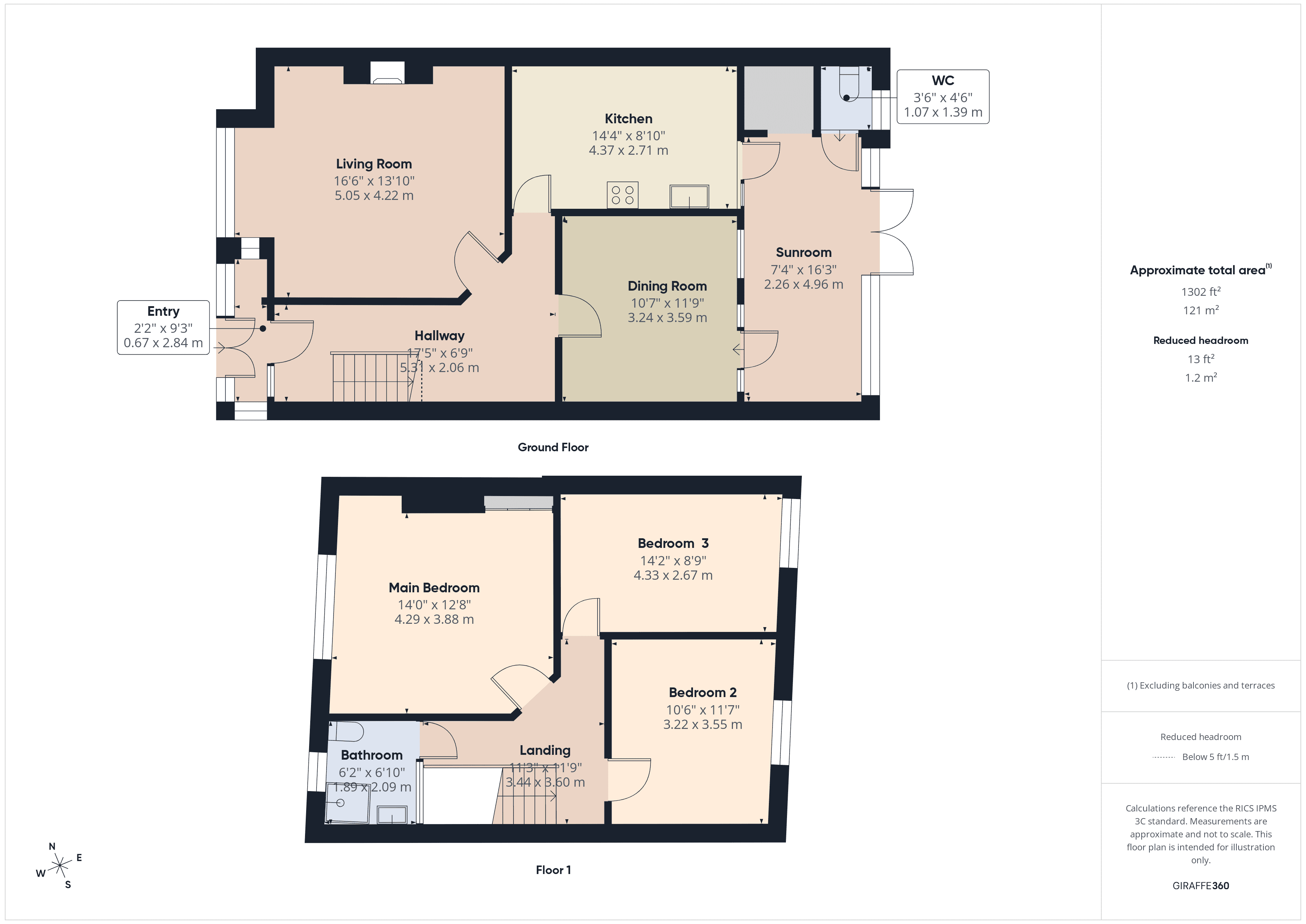
Step inside this good sized three-bedroom terraced house in the ever-popular Baffins Pond area and discover a home full of character and potential. On entering, you are welcomed by attractive period tiling in the hallway, immediately setting the tone and highlighting the property’s original features.
The living accommodation is well-proportioned and offers plenty of space for both everyday family life and entertaining. All three bedrooms are generous doubles, providing flexible options for families, professionals, or those needing space for a home office or guests.
The kitchen and dining area offer an excellent opportunity for modernisation, allowing you to create a practical and sociable heart of the home. A downstairs WC adds everyday convenience, particularly for busy households and visitors.
Outside, the property benefits from a good-sized rear garden, featuring raised beds and a patio area, ideal for gardening enthusiasts, outdoor dining, or relaxing in warmer months. At the bottom of the garden is a large outbuilding, perfect for storage, hobbies, a workshop, or additional practical space.
Situated close to Great Salterns Recreation Ground, the location is ideal for enjoying green spaces, walks, and outdoor activities. Local shops, schools, and amenities are all within easy reach, making this a great choice for families, first-time buyers, or anyone looking to settle in a popular and well-connected area.With its classic features, flexible layout, and scope to add value, this is a fantastic opportunity in a sought-after location.
Material Information • Tenure: Freehold • Council Tax: Band C• Electricity: Mains Supply • Heating: Gas• Water Supply: Mains Supply • Sewage: Mains Supply • Broadband: Standard, Superfast and Ultrafast Fibre are all available in this area • Parking: On Street • Mobile: Ofcom official website checker states that EE, Vodafone, O2 and Three available in the area • Flood Risk: Low Risk
We can help you through every step of your selling journey. It starts with a detailed expert valuation of your current home. Ready to go?
Book a face-to-face valuation with one of our local property experts, free without any obligation.